Электроснабжение административного здания по просп.Победы 53а в Святошинском районе г.Киева
ООО "Компания Трансэнерго-Ком" изготовила трансформаторную подстанцию 2КТПГС-1000/10/0,4 для электроснабжения административного здания по просп.Победы 53а в Святишинском р-не г.Киева
Фото трансформаторной подстанции 2КТПГС-1000/10/0,4 сторона НН с панелями ЩО-09
Фото трансформаторной подстанции 2КТПГС-1000/10/0,4 трансформаторный отсек с трансформатором ТМ-1000/10/0,4 Д/У-11
План расположения и габариты трансформаторной подстанции 2КТПГС-1000/10/0,4 (чертеж)
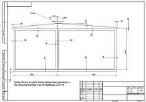
Вид спереди трансформаторной подстанции 2КТПГС-1000/10/0,4 (чертеж)
Однолинейная схема трансформаторной подстанции 2КТПГС-1000/10/0,4 (чертеж)
ТОВ "КОМПАНІЯ ТРАНСЕНЕРГО-КОМ"Сліпко Денис Олександровичвул.Митрополита В.Липківського 45, офіс 703, Київ, Україна
+380 (50) 387-08-09Vodafone
+380 (97) 092-00-75Kyivstar


